Küchenplanung mit dem
bloc-Modulsystem
Ihre bloc-Modulküche können Sie ganz einfach selbst planen.
Die folgenden Tipps erleichtern Ihnen die Planung –
damit Sie später
viel Freude an Ihrer neuen Küche haben.
Schritt 1 von 3:
Grundriss zeichnen
Als Erstes sollten Sie ausmessen, wie viel Platz Ihnen für die
zukünftige Küche zur Verfügung steht.
Zeichnen Sie Ihre Raumaße in unseren Grundriss.
Tragen Sie auch Elektro- und Wasseranschlüsse,
Heizkörper, Rohre, Schalter usw. ein.
Schritt 2 von 3:
Modulplanung
Nehmen Sie unsere Modulübersicht zur Hand und planen Sie so
lange, bis Sie die optimale Platzausnutzung gefunden haben.
Bei Ecklösungen bietet es sich an, mit der Planung in der
jeweiligen Ecke zu beginnen.
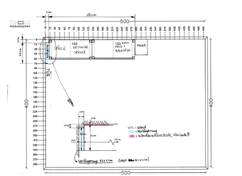
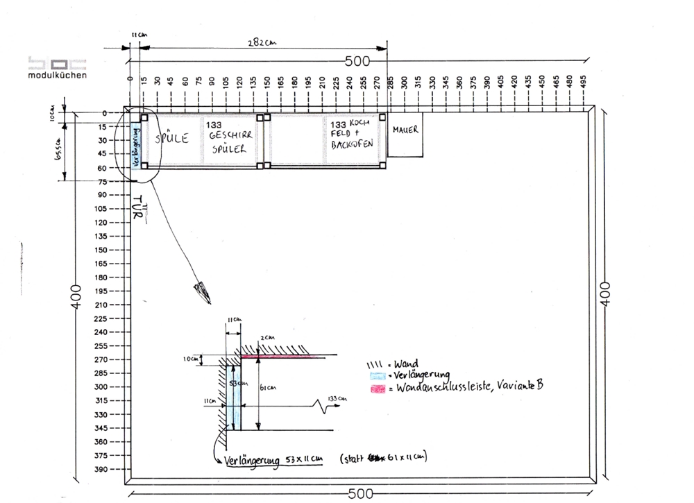
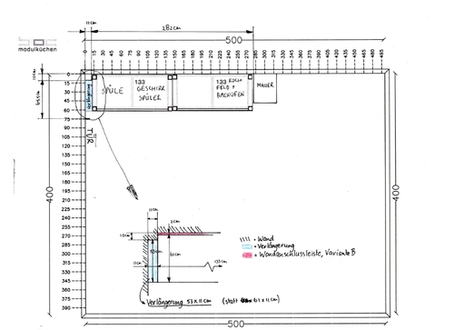
Wichtige Hinweise
1.
Der Wasseranschluss darf sich nicht hinter dem
Geschirrspüler oder Kühlschrank befinden.
2.
Beachten Sie auch die Platzierung von Heizkörpern,
Rohren, Schaltern usw. und planen Sie den Abstand
von Abfluss und Eckhähnchen mit ein.
3.
Da in Altbauwohnungen Anschlussrohre oft auf Putz
verlegt worden sind, empfiehlt sich in einigen Fällen
eine Arbeitsplattenvertiefung.
4.
Unsere Arbeitsplatten stehen standardisiert
ca. 1,7 cm nach hinten über.
5.
Vertiefungen sind von 5 bis 12 cm erhältlich.
6.
Alle Module sind mit einer 1 cm starken Rückwand versehen.
Küchenmodule
Küchenplaner
Elektrogeräte & Spülen
Planungsvorbereitung
Schritt 3 von 3:
Zubehör und Farben festlegen
Zuletzt wählen Sie Ihre Wunschfarbe und suchen
das passende Zubehör aus.
Im Angebotsformular legen Sie dann folgende Angaben fest:
Welche Holz- und ggf. Frontfarbe ist gewünscht?
Sollen Elektrogeräte mit eingeplant werden?
Wenn ja, bitte Artikelnamen angeben.
Möchten Sie Zubehör wie Armaturen und Einbauspüle bestellen?
Benötigen Sie Wandanschlussleisten?
Weitere hilfreiche Informationen finden Sie in den FAQ.
Sollten Sie darüber hinaus noch Hilfe benötigen,
erreichen Sie uns unter der
Tel. 0 52 41 – 70 36 77
Planungsbeispiele unserer Kunden













